2 - LOT SUBDIVISION

RANUI

Most consultants chase scale. We chase results that make sense.

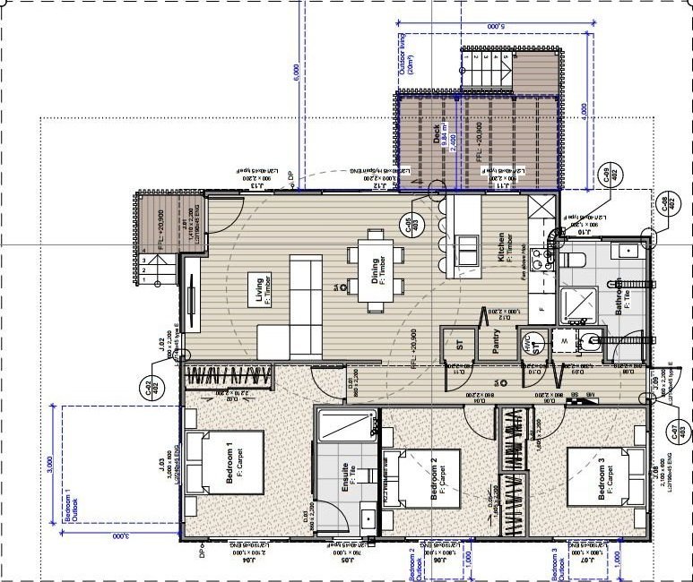
This client wanted to unlock value without overextending. They aimed to subdivide their existing site while keeping the original home. Hpms took the brief from concept to consent, designing a front lot dwelling that added value without adding unnecessary cost.

Every detail mattered. A protected tree sat in the way of the proposed vehicle crossing. Instead of paying for monitoring and reports, we adjusted the alignment by millimeters and removed the issue entirely. The sewer line beneath the site created design constraints, so we used a piled foundation to avoid costly slab work, fill, and earthworks.

When the consents were approved, the property’s value increased significantly. The client sold, freed up capital, and used the profit to move into a larger home.

Smart planning beats expensive fixes. Hpms turned a small site into a bigger opportunity.

Previous
Previous

Private Residence